Menu
Log ind
Køb abonnement
Forsiden
Læs avisen online
Generelt
Turisterhvervet
Sport
Erhverv
Kultur
Breve til avisen
Klima
Pressemeddelelser
Planer og Strategier
Natur og Miljø
Sundhed
Kirkelivet
Trafik
Foreningslivet
Børn og Unge
Mindeord og Mærkedage
Ældre på Samsø
Skoler og Uddannelse
Politik
Politistof
Rubrikannoncer
Energi
Send læserbrev
Betingelser
Kontakt
Annoncer
Planer og strategier
Planer og Strategier
8. september 2011, 13.06
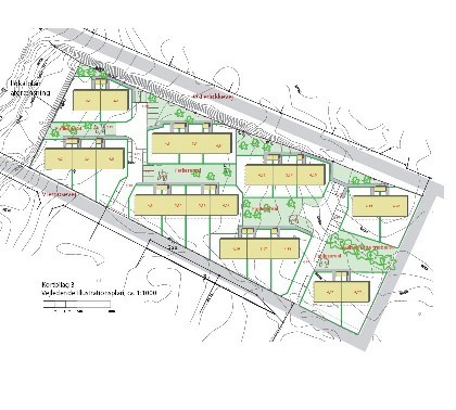
Stensbjerggård rettet yderligere ind
John Reshaur Enevoldsen
Teknisk udvalg har på flere punkter finjusteret lokalplanen som bliver forelagt kommunalbestyrelsen til vedtagelse i næste uge
FOR ABONNENTER
Planer og Strategier
25. august 2011, 15.53
Mange uafklarede forhold
John Reshaur Enevoldsen
Den nye spildevandsplan bliver sendt i offentlig høring, men kommunalbestyrelsen ønsker selv yderligere orientering fra Orbicon (det tidligere hedeselskab som er konsulent på opgaven) og der er tvivl om økonomien rækker til de planlagte investeringer
FOR ABONNENTER
Planer og Strategier
17. august 2011, 17.42
Den nye spildevandsplan kommer snart i offentlig høring
John Reshaur Enevoldsen
Planen gælder for 2011-2015 og vil afløse den eksisterende plan for 2005-2013
FOR ABONNENTER
Planer og Strategier
12. august 2011, 14.05
Forslag til Lokalplan for Strandlyst
uploadet af jre
Udvalget for Teknik og Miljø sender nu forslaget i offentlig høring
FOR ABONNENTER
Planer og Strategier
11. juli 2011, 15.44
Ilse Made Hotel kan udvide
John Reshaur Enevoldsen
Hotellet fik godkendt lokalplanen og kan nu gå i gang med detailplanlægningen
FOR ABONNENTER
Planer og Strategier
3. maj 2011, 13.11
Festivalpladsen snart godkendt
John Reshaur Enevoldsen
Samsø Festival får udvidet arealet men slipper ikke for stramninger fra Naturstyrelsen
FOR ABONNENTER
Planer og Strategier
29. april 2011, 18.25
ULOVLIGT BYGGERI PÅ STRANDVEJEN
uploadet af jre
Det lykkedes ikke for ejeren af en ejendom på Strandvejen 15 at få teknisk udvalgt velsignelse til at lovliggøre ulovligt opført byggeri.
FOR ABONNENTER
Planer og Strategier
28. april 2011, 15.41
Nyt fokus på styrkepositioner i EU
John Reshaur Enevoldsen
Vi er godt med, send bare pengene siger regionen og kommunen
FOR ABONNENTER
Planer og Strategier
4. april 2011, 17.26
Landboforeningerne har arbejdet på højtryk
John Reshaur Enevoldsen
De kommende vand- og naturplaner bliver mødt med en sand byge af høringsvar inden fristen den 6. april
FOR ABONNENTER
Planer og Strategier
28. marts 2011, 17.26
Sørendens status på dagsorden
John Reshaur Enevoldsen
Nye oplysninger åbner op for en statusændring i forbindelse med vedtagelsen af den reviderede spildevandsplan
FOR ABONNENTER
Planer og Strategier
25. marts 2011, 18.17
Manglende råstoffer fordyrer byggeri
John Reshaur Enevoldsen
Samsø kommune opfordrer regionen til at udlægge nye områder til råstofgravning på Samsø
FOR ABONNENTER
Planer og Strategier
25. marts 2011, 00.54
Hotel Strandlyst får lokalplan
John Reshaur Enevoldsen
Samsø kommune har siden 2008 bemærket en ændring i anvendelsen af aktiviteterne på ejendommen
FOR ABONNENTER
Planer og Strategier
21. februar 2011, 12.53
3-projektet rykker
John Reshaur Enevoldsen
Etape 1 er i løbet af få dage steget fra 1,7 millioner til 6,2 millioner
FOR ABONNENTER
Planer og Strategier
11. februar 2011, 12.10
Både nye og gamle sommerhusområder bliver omfattet af den kommende planlægningsproces
John Reshaur Enevoldsen
Samsø kommune indleder en samlet lokalplanlægning for sommerhusområder på Samsø
FOR ABONNENTER
Planer og Strategier
9. februar 2011, 16.51
Ilse Made Hotel fastholder udvidelsesplanerne
John Reshaur Enevoldsen
Efter vedtagelsen af en rammeplan sidste år følger hotellet op med visualiseringer og den erklærede hensigt, at udnytte rammen for udvidelsen fuldt ud, en stigning i antallet af sengepladser fra 25 til 100.
FOR ABONNENTER
Planer og Strategier
7. februar 2011, 15.39
Lettelser i planloven
John Reshaur Enevoldsen
Yderkommuner og udvalgte øer får nye muligheder
FOR ABONNENTER
« Første
‹ Forrige
27
Næste ›
Sidste »